Leave a Message

Thank you for your message. We will be in touch with you shortly.

Kay Schmucker

REALTOR® | ABR. CRS. GRI. RRC.

Request Info

4057 Wandering Lane

4057 Wandering Lane, Hickory, NC 28601

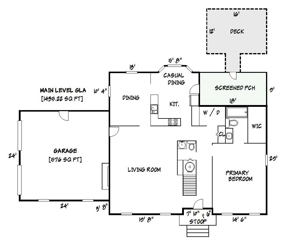
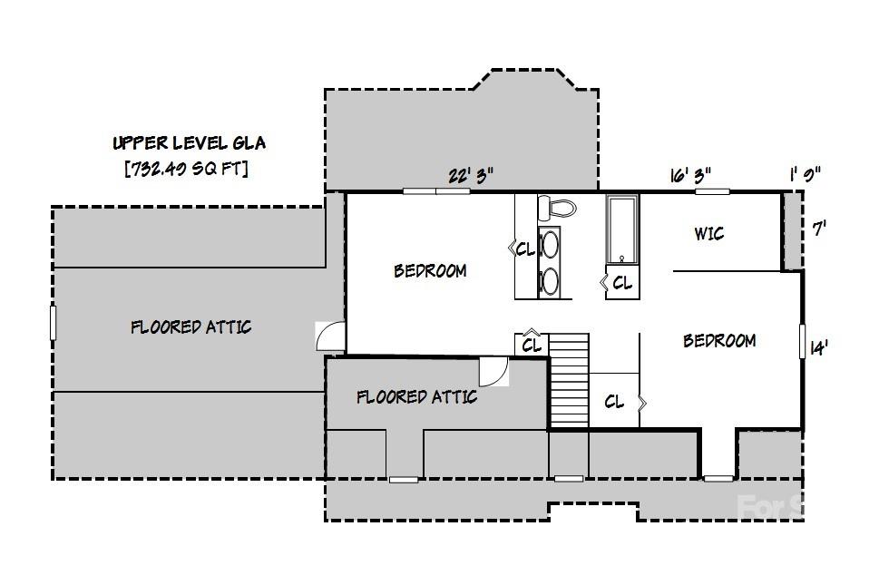
Classic Cape Cod location:Catawba Springs Golf Course 6th Green/Dogwood course. Lifestyle of serenity w/optional country club living: golfing, dining, HOA social gatherings. Entry foyer expresses "Welcome" stairway for second floor living. Spacious great room, fireplace. Bright open plan, formal dining,eat-in kitchen/bay window w/backyard golf course views/sunroom off kitchen/deck/firepit/provides privacy for family cookouts or family gatherings. Enjoy primary on main-en suite bath, closet, writing desk area in primary is considered a "jewel". Upper level-full bath, 2 bedrooms, walk in storage areas. 2 car side entry garage/main level. Catawba Springs is well known in community for affording a beautiful lifestyle w/ mature appeal & satisfaction for families enjoying different activities. Downtown Hickory affords LR University, Art center, Museum, Main Street functions, Art Walk,City Walk, River Walk-Great place to call home!

Features & Amenities

Interior

Total Bedrooms 3
Total Bathrooms 3
Full Bathrooms 2
Half Bathrooms 1
Laundry Room Main Level
Flooring Carpet, Laminate, Tile, Wood
Fireplace Living Room, Propane
Appliances Dishwasher, Electric Range

Exterior

Stories 2
Garage Space 2.0
Water Source City
Parking Driveway, Attached Garage
Heat Type Heat Pump
Air Conditioning Central Air, Heat Pump
Sewer Septic Installed
Substructure Crawl Space

Area & Lot

Status Sold
LIVING SPACE 2,167 Sq.Ft.
LOT SIZE 0.47 Acres
MLS® ID 4194741
Type Residential
Year Built 1987
Neighborhood Hickory
View Description Golf Course
ELEMENTARY SCHOOL Snow Creek
MIDDLE SCHOOL Arndt
HIGH SCHOOL St. Stephens

Financial

SALES PRICE $345,000
HOA Fees $100/yr

Work With Us

Together, we combine over 50 years of real estate experience, having closed thousands of transactions and over $500 Million in career home sales! Contact us today!

Contact Us